Котел 300 кВт уголь дрова в Хороге

Котел 300 кВт дрова уголь
Котел 300 кВт уголь дрова
Чертеж котла 300 кВт уголь дрова
Котел 300 кВт уголь дрова чертеж
Котел твердотопливный 300 кВт на дровах и угле
Твердотопливный котел 300 кВт на дровах и угле
Котел 300 кВт на угле и дровах комбинированный
Комбинированный котел 300 кВт на угле и дровах
Угольно дровяной котел 300 кВт
Котел угольно дровяной 300 кВт
Котел 300 кВт на угле и дровах - топка
Топка котла 300 кВт на угле и дровах
Котел 300 кВт на угле дровах - производство
Производство котлов 300 кВт на угле дровах
Котел 300 кВт на угле и дровах чертеж
Чертеж котла 300 кВт на угле и дровах
Фундамент котла 300 кВт уголь дрова чертеж
Чертеж фундамента котла 300 кВт уголь дрова
Котел 300 кВт дрова уголь
Чертеж котла 300 кВт уголь дрова
Котел твердотопливный 300 кВт на дровах и угле
Котел 300 кВт на угле и дровах комбинированный
Угольно дровяной котел 300 кВт
Котел 300 кВт на угле и дровах - топка
Котел 300 кВт на угле дровах - производство
Котел 300 кВт на угле и дровах чертеж
Фундамент котла 300 кВт уголь дрова чертеж
Цена
3 027 360 ₸
От 3 027 360 ₸ с доставкой до г.
Логотип WhatsApp Связаться
по WhatsApp
  • Универсальная модель эффективно работает на угле и дровах
  • Работает на дровах типа полено, поддонах, крупных кусковых отходах деревопереработки
  • Две топочные дверки: нижняя для загрузки угля, верхняя для закладки дров
  • Надежная работа котла обеспечивается изготовлением трубной системы из трубы сталь 10, 20 повышенной прочности

Технические характеристики

МаркаКотел 300 кВт уголь дрова
ВидВодогрейный
Тип отопительного котлаКомбинированный
БрендHEATEXPERT
ТипКотел уголь дрова
Объем уходящих газов0 м³/ч
Вид топкиРучная, Колосники, ОУР
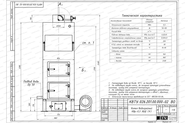
Максимальная тепловая мощность0.3 МВт
Максимальная тепловая мощность300 кВт
Максимальная тепловая мощность0.26 Гкал
Диапазон регулирования мощности50-100 %
Диапазон регулирования мощности150-300 кВт
ТопливоТвердое, Уголь, Дрова
Низшая теплота сгорания проектного топлива5230 кКал/кг
Низшая теплота сгорания резервного топлива2440 кКал/кг
Влажность топлива30 %
Фракционный состав топлива УГОЛЬсодержание мелочи (0-6 мм) не более 50%, максимальный размер куска не более 100 мм
Фракционный состав топлива ДРОВАдрова длиной не более 600 мм при загрузке через нижнюю дверцу, при загрузке через верхнюю до 800 мм
Насыпная плотность ДРОВ350 кг/м³
КПД котла на УГЛЕ, не менее80 %
КПД котла на ДРОВАХ, не меннее65 %
Расход УГЛЯ среднечасовой за отопительный сезон35 кг/ч
Расход ДРОВ среднечасовой за отопительный сезон93 кг/ч
Расход ДРОВ среднечасовой за отопительный сезон0.27 м³/ч
Расход УГЛЯ при максимальной нагрузке котла62 кг/ч
Расход ДРОВ при максимальной нагрузке котла162 кг/ч
Расход ДРОВ при максимальной нагрузке котла0.5 м³/ч
Расход условного топлива46 кг/ч
Максимальная температура воды на выходе из котла115 °С
Минимальная температура воды на входе в котел55 °С
Давление воды, не более0.15-0.3 (1.5-3) МПа (кгс/см²)
Номинальный расход теплоносителя11 м³/ч
Расход теплоносителя через котел min-max8-14 м³/ч
Гидравлическое сопротивление при номинальном расходе0.07 (0.7) МПа (кгс/см²)
Аэродинамическое сопротивление35 (3.5) Па (мм. вод. ст.)
Разряжение в топочной камере20-40 (2-4) Па (мм. вод. ст.)
Объем уходящих газов (при работе на угле)1300 м³/ч
Объем уходящих газов ( при работе на дровах)1520 м³/ч
Температура уходящих газов250 °С
ТягаЕстественная
Водяной объем котла125 л
Объем топочной камеры0.60 м³
Размер топочной камеры, длина*ширина*высота690х690х1265 мм
Присоединительные размеры по водяному тракту50 Ду
Присоединительные размеры газохода уходящих газов, ширина*высота / сечениеДу 300/0.07 мм/м²
Габаритные размеры блока, длина*ширина*высота1050х960х2285 мм
Габаритные размеры котла, длина*ширина*высота1050х960х2480 мм
Масса1250 кг
Количество контуровОдноконтурный
РазмещениеНапольный
Тип камеры сгоранияОткрытый
УправлениеЭлектронное
Принцип работы твердотопливного котлаКлассический
ЭнергонезависимыйНет
Тип питанияТрехфазное
Встроенный циркуляционный насосНет
Встроенный расширительный бакНет
ЭнергоэффективностьВысокая
Отапливаемая площадьот 2300 до 3300 м²
Отапливаемый объемот 6900 до 10000 м³
Размеры корпуса котла, длина*ширина*высота мм

Котел отопления уголь дрова 300 кВт в Хороге

Водогрейные твердотопливные котлы уголь дрова 300 кВт предназначены для отопления и горячего водоснабжения больших промышленных предприятий и маленьких зданий. Котлы устанавливаются в котельных с ручными топками, в которых используются оба вида твердого топлива.

Основные характеристики угольно дровяного котла 300 кВт:

  • мощность – 0,3 МВт, 300 кВт, 0,26 Гкал;
  • основное топливо – каменный и бурый уголь;
  • резервное топливо – дрова;
  • температура воды – до 115 °С;
  • давление воды – до 0,6 МПа.

Следует учитывать различие теплотворных свойств угля и дров. Номинальная мощность котлоагрегата будет достигаться только при использовании основного вида топлива – угля. При работе на резервном древесном топливе мощность агрегата будет меньше. Поэтому, для верного подбора мощности данной комбинированной модели, необходимо определить какое топливо будет основным, какое резервным.

Конструкция котла 300 кВт на угле на дровах

Промышленный отопительный котел 300 кВт уголь дрова – водотрубный, газоплотный, напольный, выполнен в вертикальном расположении. Топка выполняется с чугунными, либо водоохлаждаемыми колосниками, с газоплотным топочным пространством и зольником. Вварка стальной полосы между охлаждаемыми трубами обеспечивает газоплотность топки и исключает подсос холодного воздуха в зону горения. В верхней части котлоагрегата установлен двухходовой конвективный пакет. Для очистки конвективной части установлен люк. На фронтовой плите устанавливаются две топочные дверки, расположенные одна над другой. Каркас котлоагрегата выполнен газоплотным, с установленной на нем теплоизоляцией, обшитой стальными листами.

Топочная часть

Комбинированный водонагревательный котел 300 кВт для дров и угля имеет большой объем топочной камеры для загрузки объемного древесного топлива. Габариты топки способствуют более полному выгоранию топлива.

Колосниковая топка

Чугунные колосники укладываются в топку для поддержания слоя топлива. Провал золы происходит через отверстия в колосниках. Чтобы отверстия не забивались, снизу они расширяются. Дрова забрасываются на решетку через верхнюю дверцу, уголь через нижнюю. Верхняя загрузка способствует равномерному заполнению топочной камеры и контролю процесса горения. Под колосниками находится зольный короб с дверкой для чистки.

Водоохлаждаемая топка

Водоохлаждаемая топка состоит из труб по которым течет вода. Охлаждение колосников предохраняет их от перегрева и прогорания. Между труб приварены полосы металла с отверстиями. Отверстия способствуют равномерному распределению воздуха по всей площади. Маленький размер отверстий не дает провалиться в зольник недогоревшему топливу.

Для догорания легких и мелких топливных частиц, которые захватываются потоком уходящих газов, на выходе из топочной камеры котла перед конвективным пучком установлена поворотная камера.

Конвективная часть

Конвективная поверхность котла 300 кВт под уголь и дрова выполнена из плотных регистров, вставленных друг в друга в шахматном порядке. Это обеспечивает значительную нагревательную площадь, высокий коэффициент передачи тепла и компактность котла. В связи с этим горячие дымовые газы подвергаются охлаждению до 300-180 °С.

Гидравлическая схема котла

Конструкция угольно дровяного котла 300 кВт предполагает минимальные требования к водоподготовке. Скорость движения воды в трубах вызывает турбулизацию водного потока, что препятствует отложению солей и образованию накипи на стенках труб. Коллекторы котла снабжены многочисленными перегородками, которые не допускают образование застойных зон, возникновение теплового напряжения в трубах и перегрев.

Комплект поставки

Цена на котел 300 кВт уголь дрова включает базовую комплектацию. В состав базовой комплектации входит: котельный блок, топка, вентилятор поддува, колосники затворы, предохранительные клапаны, вентили, манометры, термометры, трехходовые краны.

Дополнительная комплектация

  • автоматика – обеспечивает управление и безопасность котла;
  • дымосос – создает разряжение в котле и исключает попадание дыма в помещение;
  • золоуловитель – применяется для улавливания золы из дымовых газов;
  • циркуляционный насос - обеспечивает циркуляцию воды в котлоагрегате;
  • подпиточный насос – позволяет пополнять объем теплоносителя в контуре.

Купить котел 300 кВт дрова уголь

Для того чтобы купить угольно дровяной котел 300 кВт в Хороге вы можете сделать заявку по телефону +7-7172-69-59-73, либо оформить заявку онлайн. Менеджеры дадут консультацию по подбору вспомогательного оборудования для выбранных вами моделей и рассчитают стоимость доставки. Транспортирование котлоагрегата и вспомогательного оборудования до объекта осуществляется автомобильным транспортом.

Комплект поставки

Вентилятор
Вентилятор 2 с дв. 0,37/1500
1 штука
Вентиль Ду 50
Вентиль Ду 50
2 штуки
Клапан обратный
Клапан обратный
1 штука
Манометр МП 160
Манометр МП 160
2 штуки
Кран трехходовой ДУ 15
Кран Ду 15
2 штуки
Термометр ТТЖО
Термометр ТТЖО
2 штуки
Оправа термометра ОПТ
Оправа ОПТ
2 штуки
Вентиль Ду 15
Вентиль Ду 15
1 штука
Вентиль Ду 20
Вентиль Ду 20
1 штука

Дополнительно потребуется

Насос К консольный
К 50-32-125
Цена 283 656 тг.
Насос К консольный
К 50-32-125а
Цена 279 204 тг.
Насос TD
Насос TD32-33G2 (3 кВт)
Цена 788 640 тг.
Насос CHL
Насос CHL2-40 (0.55 кВт)
Цена 368 880 тг.
Дымосос ДН 3.5
Цена 355 524 тг.
Дымовые трубы
Цена по запросу
Клапан термостатический смесительный для твердотопливных котлов
Клапан термостатический смесительный
Цена 82 680 тг.

Похожая продукция

300 кВт котел на дровах
Цена 2 912 880 тг.
Угольный котел 300 кВт
Цена 2 785 680 тг.
На опилках котел 300 кВт
Цена 8 891 280 тг.
Котел 250 кВт дрова уголь
Цена 2 537 640 тг.
Котел 400 кВт дрова уголь
Цена 3 491 640 тг.

Сертификаты товара

Сертификат на водогрейные котлы на твердом и жидком топливе
Сертификат на водогрейные котлы на твердом топливе

Собственное производство

Котельный завод производит
  • Паровые котлы от 300 кг до 2.5 тонны пара в час
  • Промышленные водогрейные котлы от 150 КВт до 4 МВт на всех видах топлива
  • Механические топки ТШПМ, шурующая планка и ТЛПХ, ленточное полотно прямого хода
  • Циклоны для очистки воздуха и дымовых газов для производств и промышленных отраслей
  • Транспортеры и системы топливоподачи и шлакоудаления
Подробнее о производстве
Собственное производство
Смотреть видео
с производства